


Description
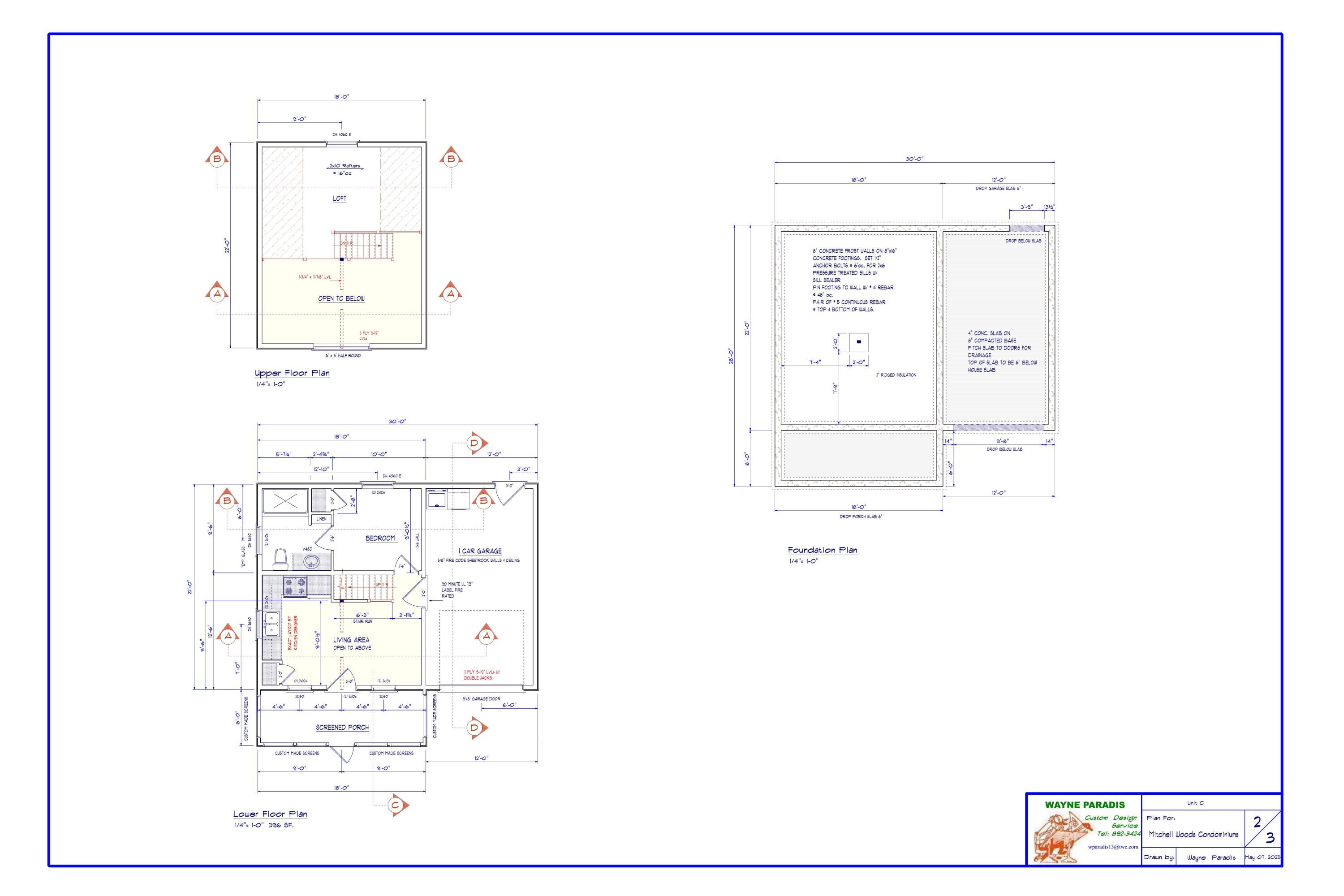
This Petite House, is a rare opportunity to own an exceptionally efficient and beautifully designed home in one of southern Maine's most convenient locations. This 550-square-foot gem proves that great living doesn't depend on size—it depends on smart design, comfort, and location.
Step inside and be surprised by how spacious it feels. The highlight of the home is the three-season room, flooding the space with natural light and offering the perfect spot for morning coffee, evening relaxation, or entertaining in style.
The home features a comfortable one-bedroom layout, a bright living room and kitchen area, and a charming loft space ideal for guests, storage, or a cozy reading nook. The one-car garage is an exceptional bonus, providing storage and convenience rarely found at this size and price point.
Set in a peaceful, rural-feeling area yet moments from everything, This Petite House delivers incredible access:
• Just minutes to the Maine Mall
• Immediate access to I-295
• Only 15 minutes to in-town Portland
• Close to shopping, dining, and major commuter routes
This property offers outstanding value as a primary residence, vacation home, or high-demand rental. Low maintenance, smart layout, heat pumps and unbeatable Gorham location—The Petite House is small living with big appeal. Seller will pay $5,000.00 towards buyers closing costs.
Location
Listed By
Similar Listings
Residential
$475,000
MLS# 1645782
ACTIVE
Residential
$475,000
MLS# 1653468
ACTIVE
Residential
$465,000
MLS# 1653371
PENDING
No similar listings found
Unfortunately, we don't have any similar listings at the moment. Please remove or change some of the selected filters.

Listing data is derived in whole or in part from the Maine IDX and is for consumers' personal, non-commercial use only. Dimensions are approximate and not guaranteed. All data should be independently verified. © Maine Real Estate Information System, Inc. All Rights Reserved. Updated: 17th April, 2026 11:34 PM (UTC)
Listing Office: F.O. Bailey Real Estate
Attribution contact:



















